IL DISEGNO E L'ARTISTA
Viterbo (Italie) – 2018
Une exposition réalisée pour célébrer dans le centenaire de sa naissance le peintre, sculpteur et enseignant de dessin et histoire de l’art Publio Muratore, personnalité du monde culturel et académique de Viterbo; idée de base de cette exposition, raconter Muratore pour la première fois à travers ses dessins: en suivant l’immédiateté du geste, entrer en contact avec l’univers le plus intime de l’artiste.
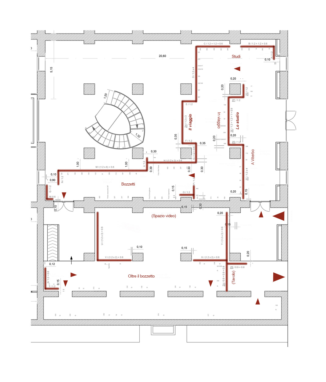
L’exposition est organisée dans l’ancien abattoir de Viterbo, transformé dans un espace d’exposition. En relation avec l’approche intimiste choisie pour cette exposition, l’espace est modelé par l’articulation de panneaux en bois peints en rouge – la même présente dans son premier atelier – qui accompagnent le visiteur dans une atmosphère envoutante où les dessins émergent délicatement.
Le parcours de l’exposition s’articule en cinq sections qui correspondent à des groupes de dessins indépendants mais liés entre eux : simples croquis, études pour scénographie, fresques ou tableaux. La dernière section montre une sélection de tableaux à l’huile – nous rappelant la production la plus connue de l’artiste – avec à côté le dessin originaire.
L’agencement est caractérisé par l’alternance perméable entre les sections et deux espaces de vie, le Studio (reconstitution de son atelier) et le Viaggio (espace dédié à ses voyages), scénographies qui constituent des moments d’approfondissement et de pause dans le parcours de visite.
Complète cette exposition un espace où est diffusée en boucle une vidéo contenant des morceaux d’interviews et des images de la vie de l’artiste.
Le catalogue de l’exposition a été conçu en suivant la division en section de l’agencement, dans le but de maintenir vivant le message de l’exposition dans le temps.












