PUBLIO MURATORE
IL DISEGNO E L'ARTISTA
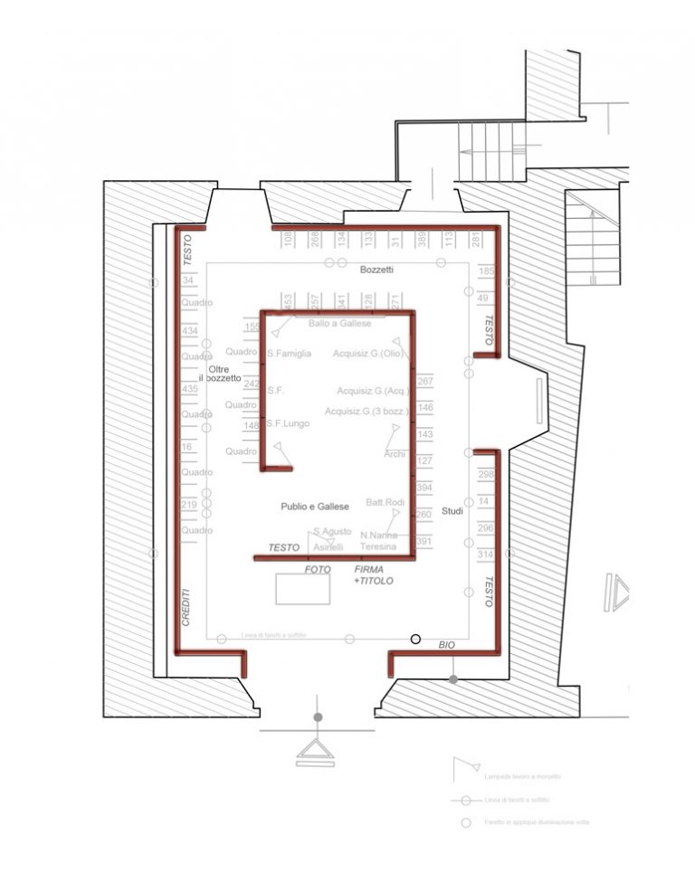
Gallese (Italie) – 2018
Une deuxième édition de l’exposition « Publio Muratore – Il disegno e l’artista » a eu lieu en mai 2018 dans le village natal de Muratore, Gallese. Dans une petite salle annexe au musée communal Marco Scacchi, un agencement en spirale guide le visiteur le long d’un parcours à travers trois des sections de l’exposition de Viterbo, avec une section, inédite, Publio e Gallese, qui contextualise l’exposition en présentant des oeuvres liées à son village: des premiers tableaux réalisés dans sa jeunesse aux dessins préparatoires pour les fresques dans deux églises de son village, jusqu’à la production plus récente ; évoquant le lien entre Muratore et ses origines et réunissant des oeuvres qui appartiennent aux époques les plus variées de sa production, cette section permet d’avoir un regard sur les différentes phases – techniques, esthétiques – qui caractérisent son œuvre.










